Пн-Пт с 9:00 до 18:00
Работаем по РФ, Москве и Твери
Заказать обратный звонок
Мин. сумма заказа - 3000₽
Личный кабинет
Оснащение оборудованием под ключ. Скидка 20%!
Откройте Яндекс Лавку с опытным партнёром
По виду оборудования:
По типам предприятия
По брендам

Экспресс оборудование даркстора Яндекс Лавки

Заказать проект
Задать вопрос

Клиент: 

Сервис доставки продуктов “Яндекс Лавка”.

Задача:

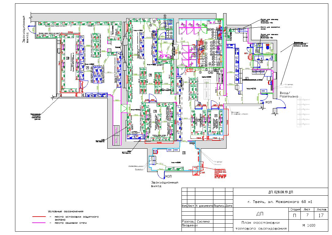
Подобрать, рассчитать и поставить в короткие сроки оборудование для даркстора Яндекс Лавка в Твери.

В ходе реализации задачи были выполнены следующие работы:

  • Подбор и поставка оборудования для склада, холодильные камеры.

Поставленное оборудование:

  1. Шкаф холодильный 

  2. Шкаф морозильный 

  3. Камера холодильная 1960 х 3160х 2200мм.

  4. Камера холодильная 3160х4660х2200 мм

  5. Камера холодильная 2260х7060х2200 мм

  6. Сплит-система

  7. Стеллажи

Услуги, оказанные в ходе работы:

  • Подбор оборудования

  • Доставка оборудования


В результате проделанной работы в г. Тверь был оснащен даркстор "Яндекс Лавки".

Ирина Дубровина, операционный директор, экспресс-сервис «Фреш24»
Изначально мы не знали, как грамотно разместить кухню и дарк-стор на одной площади, чтобы не мешали друг другу. Команда Торгового Проекта предложила классную планировку, оборудование подобрали чётко под наши задачи. За счёт грамотного зонирования теперь сборка и готовка идут параллельно — без конфликтов и простоев. Уложились в срок, получили готовую точку, которая сразу начала приносить заказы
Сергей Назаров, шеф-повар, фуд-продукт "Печки-Лавочки 2.0"
Кухню площадью 42 м² уместили компактно, но без компромиссов — всё, что нужно: тепловая зона, холодильники, вытяжка, столы. Даже при пиковом потоке повара работают без пересечений. Упаковка — рядом, удобно и по логике потоков. Особенно приятно, что проектирование и консультации были бесплатными — сразу видно, что компания знает кухонный ритм изнутри.
Максим и Алена Корниловы, основатели сети “Питание Быстро”
Мы открывали первую точку в новом формате — дарк-стор с собственной кухней. Были сомнения, как всё это связать технически, особенно по нормам. Ребята из ТК “Торговый проект” всё продумали: от вентиляции и электрики до стеллажей и пуско-наладки. Сейчас у нас в день до 600 заказов — оборудование справляется на ура. Спасибо за гибкость и профессионализм!
Александр Ефимов, координатор логистики, проект «Маркет GO»
После запуска объекта сборка заказов стала в 2 раза быстрее — всё благодаря продуманной логистике внутри дарк-стора. Оборудование расставлено логично, каждый метр используется. Упаковка, маркировка, хранение заказов — на своём месте. Большое спасибо за эффективный подход!
Никита Кожин, ИТ-интегратор проекта доставки
Нам важно было встроить оборудование в цифровую систему сборки и доставки: планшеты, весы, маркировка, ТСД. Команда Торгового Проекта не просто поставила технику, а сразу учла интеграцию — и по интерфейсам, и по удобству расположения. Теперь сборщики работают быстро и без путаницы.
Анна Черных, франчайзи фуд-проекта «FreshPoint»
Мы запускали первую точку по франшизе, и было важно уложиться в бюджет и нормативы. Получили готовый проект, рекомендации по технике, поставку и сборку — и всё это без бюрократии. Сейчас запускаем вторую точку — снова с ТК "Торговый проект". Надёжные партнёры, рекомендую.
Анна Черных, франчайзи фуд-проекта «FreshPoint»
Мы запускали первую точку по франшизе, и было важно уложиться в бюджет и нормативы. Получили готовый проект, рекомендации по технике, поставку и сборку — и всё это без бюрократии. Сейчас запускаем вторую точку — снова с ТК "Торговый проект". Надёжные партнёры, рекомендую.