Пн-Пт с 9:00 до 18:00
Работаем по РФ, СНГ
Заказать обратный звонок
Личный кабинет
Оснащение оборудованием под ключ. Скидка 20%!
Откройте Яндекс Лавку с опытным партнёром
По виду оборудования:
По типам предприятия
По брендам

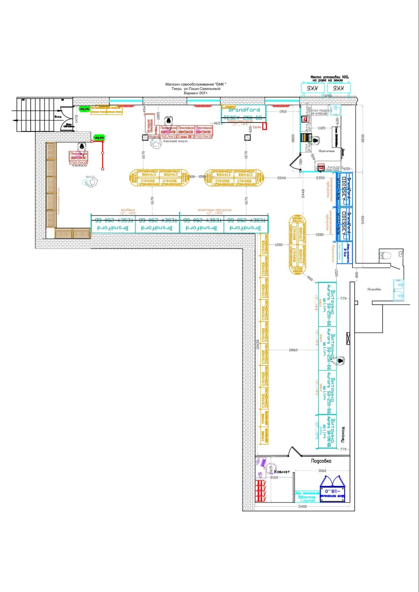
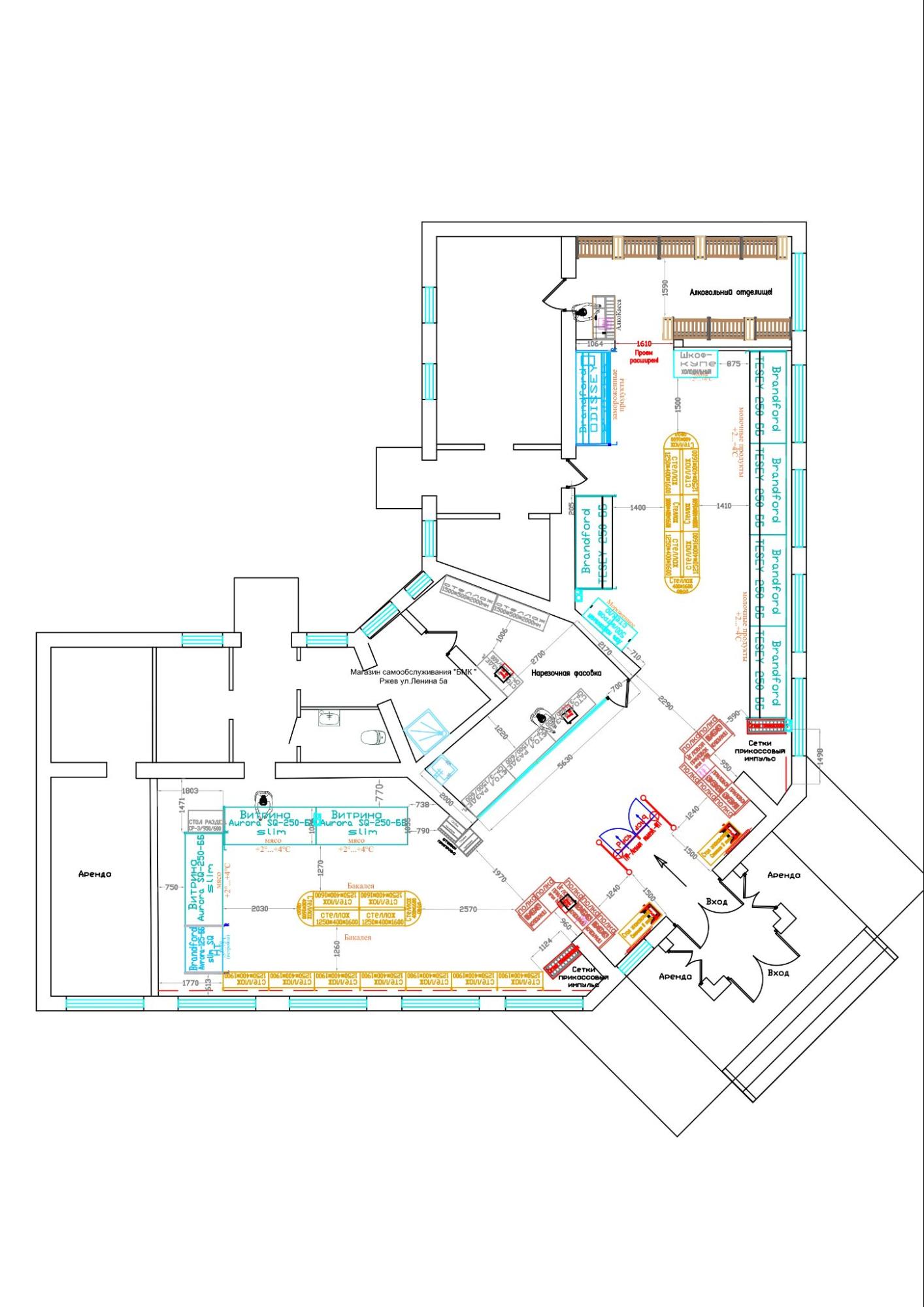
Открытие "под ключ" 35 магазинов розничной сети магазинов "БМК"

Заказать проект
Задать вопрос

Клиент: 

Группа компаний “БМК”  и сеть розничных магазинов «БЕЛМАРКЕТ» - генеральный дистрибьютор Брестского мясокомбината. В их ассортименте представлены: колбасные изделия, молочная продукция и сыры, охлажденное мясо и полуфабрикаты, рыбная и замороженная продукция, бакалея, напитки, кондитерские изделия, алкоголь.

Компания “Торговый проект” является постоянным партнером ГК «БМК» с 2020 года и оснащает магазины торговой сети по всей России. На 2024 год открыто более 35 магазинов “под ключ” и оснащено оборудованием более 85 торговых точек.

Цель проекта:

Оснащение новых магазинов "под ключ" от проектирования до открытия.

Задачи проекта:

  1. Формирование технического задания на разработку проекта.

  2. Выезд на объекты, замер и выявление инженерно-технических особенностей помещений.

  3. Создание плана расстановки  оборудования и торговой мебели согласно требованиям заказчика с соблюдением санитарно-технических норм и товарного соседства.

  4. Предподготовка объекта: подключение к инженерным сетям.

  5. Подбор и поставка оборудования согласно утвержденного плана .

  6. Монтаж и подключение оборудования к инженерным сетям и коммуникациям, пуско-наладочные работы. 

  7. Постановка оборудования на сервисное обслуживание.


Ирина Дубровина, операционный директор, экспресс-сервис «Фреш24»
Изначально мы не знали, как грамотно разместить кухню и дарк-стор на одной площади, чтобы не мешали друг другу. Команда Торгового Проекта предложила классную планировку, оборудование подобрали чётко под наши задачи. За счёт грамотного зонирования теперь сборка и готовка идут параллельно — без конфликтов и простоев. Уложились в срок, получили готовую точку, которая сразу начала приносить заказы
Сергей Назаров, шеф-повар, фуд-продукт "Печки-Лавочки 2.0"
Кухню площадью 42 м² уместили компактно, но без компромиссов — всё, что нужно: тепловая зона, холодильники, вытяжка, столы. Даже при пиковом потоке повара работают без пересечений. Упаковка — рядом, удобно и по логике потоков. Особенно приятно, что проектирование и консультации были бесплатными — сразу видно, что компания знает кухонный ритм изнутри.
Максим и Алена Корниловы, основатели сети “Питание Быстро”
Мы открывали первую точку в новом формате — дарк-стор с собственной кухней. Были сомнения, как всё это связать технически, особенно по нормам. Ребята из ТК “Торговый проект” всё продумали: от вентиляции и электрики до стеллажей и пуско-наладки. Сейчас у нас в день до 600 заказов — оборудование справляется на ура. Спасибо за гибкость и профессионализм!
Александр Ефимов, координатор логистики, проект «Маркет GO»
После запуска объекта сборка заказов стала в 2 раза быстрее — всё благодаря продуманной логистике внутри дарк-стора. Оборудование расставлено логично, каждый метр используется. Упаковка, маркировка, хранение заказов — на своём месте. Большое спасибо за эффективный подход!
Никита Кожин, ИТ-интегратор проекта доставки
Нам важно было встроить оборудование в цифровую систему сборки и доставки: планшеты, весы, маркировка, ТСД. Команда Торгового Проекта не просто поставила технику, а сразу учла интеграцию — и по интерфейсам, и по удобству расположения. Теперь сборщики работают быстро и без путаницы.
Анна Черных, франчайзи фуд-проекта «FreshPoint»
Мы запускали первую точку по франшизе, и было важно уложиться в бюджет и нормативы. Получили готовый проект, рекомендации по технике, поставку и сборку — и всё это без бюрократии. Сейчас запускаем вторую точку — снова с ТК "Торговый проект". Надёжные партнёры, рекомендую.
Анна Черных, франчайзи фуд-проекта «FreshPoint»
Мы запускали первую точку по франшизе, и было важно уложиться в бюджет и нормативы. Получили готовый проект, рекомендации по технике, поставку и сборку — и всё это без бюрократии. Сейчас запускаем вторую точку — снова с ТК "Торговый проект". Надёжные партнёры, рекомендую.